ZFQ全天候阻火衬氟呼吸阀操作应用案例
衬氟呼吸阀是用于保护储罐安全的重要部件之一,其作用是在压力异常时自动打开排气泄压,防止因超压或负压导致的事故发生。衬氟呼吸阀是一种特殊类型的阀门,广泛应用于工业领域。它的主要特点是内部采用了特殊的材料涂层——氟塑料(例如聚四氟乙烯),使其具有出色的耐腐蚀性和抗老化性。因此,在特定的环境下,选择这种阀门是非常明智的选择。接下来麻豆AV在线观看将详细介绍哪些场景可能会用到它。二、化工行业的应用实例分析由于化学品的性质各异且具有一定的危险性,因此在处理过程中需要严格控制其泄漏和排放问题。例如在生产一些酸性或碱性液体时会产生大量的麻豆黄色在线观看,这些麻豆黄色在线观看的排出需要通过管道进行传输和处理以确保安全有效。这时就需要安装专门的阀门来应对腐蚀性的环境挑战,而衬氟呼吸阀因其优良的耐腐性能被广泛应用在这些场景中;此外它还具备调节压力的功能使得整个系统更加稳定可靠地运行下去从而避免事故的发生概率以及保护环境和人身财产安全等重要作用。除此之外在石化行业当中同样也会运用到此类产品用于对易燃易爆有毒物质的隔离控制等等作用十分广泛多样化和重要化不可忽视其作用和价值所在意义深远影响巨大。常见的几种类型的衬氟呼吸阀如下:
1.直通式呼吸阀:这种呼吸阀结构简单,易于安装和维护;适用于中小容量的储存设备中。它通常采用单向流动设计,确保麻豆黄色在线观看只能从一侧排出而不能回流到容器内。
2.带罩阻隔型呼吸阀:这类呼吸阀配有防尘盖(即“罩"),可有效阻止灰尘和其他杂质进入阀门内部影响性能和使用寿命;适合于需要更高防护等级的应用场合,如高温环境下的重防腐材料等。
3.微压型呼吸阀:该类产品主要针对密封性较好的高压钢瓶或者在常温下正常工作的储气筒之类的高精度要求应用领域,可以精确地控制系统的泄漏率达到指定的标准。
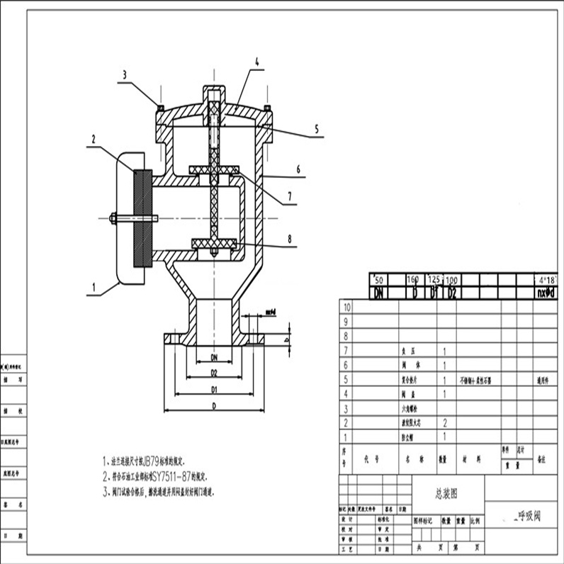
集阻火器与呼吸阀为一体,其新颖的结构为。是石化储罐的新型安全设备,其是阻火呼吸性能好,重量轻,使用方便。该产品适用于储存内点低于28 ℃的甲类油品和闪点低于 60 ℃的乙类油品,如汽油、笨、甲笨、煤油、轻柴油、机油、原油等油品及性质相同的化工产品储罐使用。亦可作为阻火单呼或单吸阀。

1、壳体选用不锈钢、铸钢和铝合金,耐腐蚀性好;
2、阀盘采用四氟材料,耐低温,防冻性能好;
3、结构简单,易检修,安全方便。
4、性能符合石油工业部标准 SY7511-87 规定。
呼吸阀由压力阀和真空阀组成,安装于货油舱透气管上,能随货油舱内油气正负压变化而自动启闭,使货油舱内外气压差保持在允许值范围内。当罐内介质的压力在呼吸阀的控制操作压力范围之内时,呼吸阀不工作,保持油罐的密闭性;当往罐内补充介质,使罐内上部麻豆黄色在线观看空间的压力升高,到呼吸阀的操作正压时,压力阀被顶开,麻豆黄色在线观看从呼吸阀呼出口逸出,使罐内压力不在继续增高;罐外的大气将顶开呼吸阀的负压阀盘。
ZFQ-1不锈钢阻火呼吸阀安装在储罐顶部,是解决罐内正压,负压的麻豆黄色在线观看,使罐内的液体进出没有受到阻碍,当外液体输入罐内时有大量的麻豆黄色在线观看往外呼(称正压)。如罐内液体往外输出时罐内必须从外空气吸进罐内(称负压)。如停止工作时呼吸阀自动关闭不会把罐内液气往外泄漏,使罐内的液体质量得到了有利的保障。

ZFQ-1不锈钢阻火呼吸阀适用于储存闪点低于 28 ℃的甲类油品和闪点低于 60 ℃的乙类油品,如汽油、笨、甲笨、煤油、轻柴油、机油、原油等油品及性质相同的化工产品储罐。全天候呼吸阀可与ZGB波纹阻火器配套使用。
安装在储罐顶部,是解决罐内正压,负压的麻豆黄色在线观看,使罐内的液体进出没有受到阻碍,当外液体输入罐内时有大量的麻豆黄色在线观看往外呼(称正压)。如罐内液体往外输出时罐内必须从外空气吸进罐内(称负压)。如停止工作时呼吸阀自动关闭不会把罐内液气往外泄漏,使罐内的液体质量得到了有利的保障。
二、ZFQ全天候阻火衬氟呼吸阀操作应用案例产品特点:
1、结构简单,易检修,安全方便。
2、阀盘采用四氟材料,耐低温,防冻性能好。
3、新型呼吸阀壳体选用不锈钢、铸钢和铝合金,耐腐蚀性好。
4、新型呼吸阀性能符合石油工业部标准 SY7511-87 规定。
三、ZFQ全天候阻火衬氟呼吸阀操作应用案例产品应用:
适用于储存内点小于28℃的甲类油品和闪点小于60℃的乙类油品,如汽油、苯、甲苯、煤油、轻柴油、机油、原油等油品及性质相同的化工产品储罐使用,它在-35℃-60℃的温度环境中正常工作。

ZFQ全天候阻火衬氟呼吸阀操作应用案例
序号 | 品 名 | 型 号 及 规 格 | 单位 | 数量 |
1 | 呼吸阀 | 衬氟呼吸阀GFQ-16C/F46密封面:RF螺丝孔中心距125MM 4个螺丝孔,螺丝孔大小18MM 正压开启压力:2 KPA负压开启压力:-298PA介质:盐酸 | 台 | 1 |
| 压力 | 等级 | |||
| A | B | C | D | |
| 呼出压力 | +355Pa(36mmH20) | +980Pa(100mmH20) | +1765Pa(180mmH20) | 特殊指定 |
| 吸入压力 | -295Pa(30mmH20) | -295Pa(30mmH20) | -392Pa(40mmH20) | 特殊指定 |
| 代号 | 规格mm | 50 | 80 | 100 | 150 | 200 | 250 |
| 压力等级Pa | 通气量m3/h | ||||||
| A | +335 | 25 | 60 | 90 | 190 | 340 | 550 |
| -295 | 20 | 50 | 75 | 160 | 280 | 450 | |
| B | +980 | 30 | 70 | 100 | 200 | 380 | 600 |
| -295 | 20 | 50 | 75 | 160 | 280 | 450 | |
| C | +1765 | 40 | 95 | 140 | 280 | 500 | 800 |
| -295 | 20 | 50 | 75 | 160 | 280 | 450 | |
| 标准允许泄漏量m3/h | ≤0.04 | ≤0.4 | |||||
| 代号 | 材料 | ||||||
| Ⅰ | ZALSi7Mg | 铸铝合金 | 铝合金 | 1Cr13 | 304 | 聚四氟乙烯 | 油品 |
| Ⅱ | CS | 碳钢 | 304 | 304 | 304 | 聚四氟乙烯 | 油品、化工品 |
| Ⅲ | OCr18Ni9 | SS304 | 304 | 304 | 304 | 聚四氟乙烯 | 化工品 |
| Ⅳ | 00Cr19Ni11 | SS304L | 304L | 304L | 304L | 聚四氟乙烯 | 化工品 |
| Ⅴ | 0Cr17Ni12Mo2 | SS316 | 316 | 316 | 316 | 聚四氟乙烯 | 化工品 |
| Ⅵ | 00Cr17Ni14Mo2 | SS316L | 316L | 316L | 316L | 聚四氟乙烯 | 化工品 |
| 阀体材料 | WCB、304、316、铝合金 |
| 正压阀盘材料 | 304、316、铝合金 |
| 负压阀盘材料 | 304、316、四氟PTFE |
| 环境温度 ℃ | -30~60 |

| 通径 | 型号 | H | L | D | D1 | D2 |
| DN50 | ZFQ-50 | 205 | 160 | Φ140 | Φ110 | Φ90 |
| DN80 | ZFQ-80 | 250 | 205 | Φ185 | Φ150 | Φ125 |
| DN100 | ZFQ-100 | 270 | 225 | Φ205 | Φ170 | Φ145 |
| DN150 | ZFQ-150 | 320 | 295 | Φ260 | Φ200 | Φ200 |
| DN200 | ZFQ-200 | 340 | 330 | Φ315 | Φ225 | Φ225 |
| DN250 | ZFQ-250 | 768 | 666 | Φ370 | Φ310 | Φ310 |
| DN300 | ZFQ-300 | 840 | 704 | Φ435 | Φ395 | Φ362 |
1、呼吸阀应安装在储罐气源的最高点,以降低物料蒸发损耗和以便顺利地提供通向呼吸阀最直接和最大的通道。通常对于立式罐,呼吸阀应尽量安装在罐顶中央顶板范围内,对于罐顶需设隔热层的储罐、可安装在梯子平台附近;
2、当需要安装两个呼吸阀时,它们与罐顶中心应对称布置;
3、若呼吸阀用在氮封罐上,则氮气供气管的接管位置应远离呼吸阀接口,并由罐顶部插入储罐内约 200mm ,这样氮气进罐后不直接排出,达到氮封的目的。
为了呼吸阀使用安全,应在3-6个月内定期将波纹阻火层拆下,清洗干净,保证阻火层上每个孔畅通,防止堵塞,确保安全正常使用。定期检查通风气正、负阀盘动作是否灵活,导杆及阀盘接触密封面有无损坏,如有损坏应立即调换。在检查维护重新安装时,应保证阀内各结合面严密配合,阀盘升降灵活。新阀启用时,应安装前清除阀盘间的防震物,否则呼吸阀将失灵。

ZFQ全天候阻火衬氟呼吸阀操作应用案例呼吸阀安装要求
呼吸阀的安装位置至关重要,它作为储罐的重要组成部分,通常应被安装在储罐气相空间的最高点,以确保通气顺畅。在立式罐中,呼吸阀最好安装在罐顶中央顶板范围内。为了降低物料的蒸发损耗并确保顺畅的通气,应在罐顶中央安装呼吸阀。
若需安装两个呼吸阀,在设有隔热层的罐顶储罐中,它们应与罐顶中心对称布置,以确保稳定。这样不仅能够保证罐顶的对称性和稳定性,还可以有效平衡来自不同方向的压力。
对于氮封罐,使用的呼吸阀需注意氮气供气管的接管位置,该位置应远离呼吸阀接口,并从罐顶部深入储罐内约200mm,以实现氮气的有效封存,避免其直接排出。
02调节阀安装一般要求
在安装调节阀组时,需遵循一系列重要规范以确保其正常运行和长期稳定性。调节阀的位置必须严格遵循工艺流程设计,同时便于观察与其相关的一次指示仪表,以便在手动操作旁路阀时能够实时监控仪表读数。
调节阀必须正立垂直地安装在水平管道上,加装支撑以确保稳定。除非在特殊情况下,否则不得水平或倾斜安装。
调节阀组立面安装时,调节阀应位于旁路阀的下方。对于公称直径小于25mm的调节阀,也可选择安装在旁路阀的上方,但需确保不会影响整体性能。在这种布置中,旁路阀的直径大小应选择合适以保证性能。
调节阀底部与地面或平台面的间距不得小于400mm,以留出足够的空间进行维护和检修,确保调节阀操作时净空不小于2mm以防止操作困难。
调节阀应安装在环境温度适宜的范围内,避免过高或过低的温度影响其性能。同时要远离振动源,确保稳定运行。特别是在同一个区域内安装多个调节阀组时,需考虑到环境温度及振动源的影响,以提高整体视觉效果和实用性,并确保操作便捷和稳定性。
03ZFQ全天候阻火衬氟呼吸阀操作应用案例压力管道安全阀设置
容积泵出口管道上必须安装安全阀,以避免超压风险。如电动往复泵、齿轮泵或螺杆泵,这些泵的出口管道上必须安装安全阀。
可燃麻豆黄色在线观看往复式压缩机的各段出口处必须安装安全阀,其放空管可接至压缩机各段入口或一段入口管道上,确保不超过设计压力,保证压缩机出口的安全要求。
当可燃麻豆黄色在线观看和可燃液体因受热膨胀可能超过设计压力时,必须设置安全阀,以维持正常压力。

04ZFQ全天候阻火衬氟呼吸阀操作应用案例安全阀安装设计要点
安全阀应竖直安装,并尽可能靠近受保护的设备或管道,以降低管道阻力,这种安装方式是确保安全阀功能的有效方法。
为便于检修,建议为安全阀设置专门的检修平台。安全阀应设置检修平台以确保维护方便,必要时另设吊装设备。
设计安全阀出口管道时,需确保背压不超过安全阀定压的特定范围,对于常规弹簧式安全阀,背压应控制在定压值的10%以内。若排放介质中包含凝液或可冷凝麻豆黄色在线观看,且这些介质将排入放空总管或火炬总管,那么安全阀的出口高度应高于总管;否则,需采取适当的排液措施。

05ZFQ全天候阻火衬氟呼吸阀操作应用案例管件布置一般要求
优先选用曲率半径为1.5倍公称直径的长半径弯头,特别是对于输送气固、液固两相流物料的管道,应选用大曲率半径弯管,以降低阻力。在省廊上的水平管道进行变径连接时,若无特殊要求,应选用底平偏心异径管。
在水平吸入的离心泵中,当入口管变径时,应在靠近泵的入口处设置偏心异径管。同时,平焊法兰不应与无直管段的弯头直接连接,以保证密封性能。
除非工艺有特殊要求,否则塔、反应器、立式容器等设备裙座内的管道上不得布置法兰和螺纹接头,以避免潜在泄漏风险。
通过遵循这些安装和布置要求,可以确保管道系统的顺畅和安全运行,减少潜在故障和隐患。