储罐氮封设置规范储罐氮封基本原理
氮封装置,作为储罐顶部的重要设施,旨在维持储罐的微正压状态。此设计能有效隔离储罐内的物料与外部环境,从而减少物料的挥发和不必要的浪费,同时确保储罐的安全运行。在储罐上配备的氮封系统,会实时监测气相空间内的压力变化。当压力维持在0.2-0.5kPa的范围内时,系统保持稳定。一旦压力超过0.5kPa,氮封阀会立即关闭,停止氮气供应;而当压力降至0.2kPa以下时,氮封阀则会开启,补充氮气,确保储罐在运行过程中始终不会吸入空气,进而防止形成可能引发爆炸的麻豆黄色在线观看混合物。此外,为保障系统的有效运行,所使用的氮气纯度应不低于99.96%,且氮气压力控制在0.5~0.6 MPa的适宜范围内。

气相空间压力的监测与氮气的补充控制是储罐氮封器的两大功能,确保储罐不会吸入空气从而预防爆炸。在储罐上设置氮封系统装置,用于维持罐内气相空间压力。假设:供氮阀压力是 1.2KPa(可根据实际工 况需求选择压力设定点),当气相空间压力高于 1.4KPa 时,供氮阀关闭,停止氮气供应;当气相空间压 力低于 0.8KPa 时,氮封阀开启,开始补充氮气。假设:泄氮阀压力设定点是 3KPa(可根据实际工况需求 选择压力设定点),当气相空间压力高于 3KPa 时,泄氮阀开启,泄放罐内压力至 3KPa 以内。氮封系统装 置主要起保证储罐在正常运行过程中不吸进空气,防止形成爆炸性麻豆黄色在线观看作用。 储罐氮封系统装置使用的氮气纯度不宜低于 99.96%,可根据实际现场工况及用途选择合适氮封系统装置。
供氮阀:
指挥器操作自力式压力调节阀,是一种无须外来能源,利用被调介质自身的压力变化达到自动调节 和稳定阀后压力为设定值的节能型压力调节阀。
该阀压力设定在指挥器上实现,方便、快捷,压力设定值在运行中也可随意调整;控制精度高,可比一般 ZZY 型直接操作自力式压力调节阀高一倍,适合于控制精度要求高的场合。
泄氮阀:
◇ 一般供氮气压力在 3×10^5-10×10^5Pa 之间
◇ 罐顶呼吸阀仅起安全作用,是在主阀失灵,导致罐内压力过高或过低时,起到安全作用,在正常情 况下不工作
◇ 泄氮阀安装在罐顶,口径一般与进液阀口径一致
◇ 一般泄氮阀的压力设定点略大于供氮阀的压力设定点,以免供、泄氮装置频繁工作,浪费氮气、影 响设备的使用寿命。
◇ 该装置广泛应用于化工、石油、冶金、电力、轻纺等工业部门中用作生产过程的自动调节。

02储罐氮封设置规范
在石油化工储运系统中,储罐氮封的设置至关重要。根据SH/T3007《石油化工储运系统罐区设计规范》的相关条款,对于甲B、乙A类液体化工品,若存在特殊储存需求,可选择使用固定顶储罐、低压储罐或容量不超过100m³的卧式储罐。但必须采取必要的措施,如设置氮气或其他惰性麻豆黄色在线观看密封保护系统,以密闭处理罐内排出的麻豆黄色在线观看,或者将储存温度控制在闪点5℃及以下。此外,《石油化工储运罐区VOCs治理项目指导意见》也明确规定,甲B、乙A类中间原料储罐、芳烃类储罐、轻污油储罐、酸性水罐以及排放气中含有高浓度油气和硫化物的储罐,均应设置氮气密封系统。这些规范旨在确保储罐的安全运行,防止挥发性有毒或可燃麻豆黄色在线观看泄露,以及避免储罐内物料与氧接触导致的氧化或化学反应。
行业规范要求不同类别储罐需采用氮气密封,以防止可燃或有毒麻豆黄色在线观看泄露以及氧化反应。ZZYVP微压指挥器操作自力式压力调节阀是一种无需外加驱动能源,依靠被调介质自身的压力为动力源及其介质压力变化,按设定值,进行自动调节的节能型控制装置。他集检测、控制、执行诸多功能于一阀,自成一个独立的仪表控制系统。
产品特点
该产品由低流阻浮动阀、指挥器操作器及执行机构组成。是符合国际标准的新一代阀门产品,其特点有: 1、执行机构敏感,极微小的压力变化即刻会检测出; 2、设定点可调且范围宽,便于用户在设定范围内连续调整; 3、结构简单,维护工作量小; 4、无需外加驱动能源的节能型自控系统,设备费用低,适用于爆炸性环境; 该产品特别适用于各行业的储罐的气封系统及安全保护系统。如储罐氮封。

储罐氮封设置规范
序号 | 品 名 | 型 号 及 规 格 | 单位 | 数量 |
1 | 氮封阀 | 自力式氮封阀ZZYVP DN40 PN16 法兰连接 常温氮气 进口压力 0.2-0.8 MPA,出口压力0.5KPA 法兰对角螺丝孔中心距110MM 4个螺丝孔,螺丝孔大小18MM | 台 | 2 |
2 | 泄氮阀 | 自力式泄氮阀ZXD DN40 PN16 法兰连接 常温氮气 出口压力2KPA 法兰对角螺丝孔中心距110MM 4个螺丝孔,螺丝孔大小18MM | 台 | 1 |
3 | 泄氮阀 | 自力式泄氮阀ZXD DN50 PN16 法兰连接 常温氮气 出口压力2KPA 法兰对角螺丝孔中心距125MM 4个螺丝孔,螺丝孔大小18MM | 台 | 1 |
法兰规格 单位:mm
| ZZYVP带指挥器型公称通径DN | 20 | 25 | 32 | 40 | 50 | 65 | 80 | 100 |
|---|---|---|---|---|---|---|---|---|
| D | 105 | 115 | 140 | 150 | 165 | 185 | 200 | 220 |
| D1 | 75 | 85 | 100 | 110 | 125 | 145 | 160 | 180 |
| B | 16 | 18 | 20 | 22 | ||||
| n-ф | 4-14 | 4-18 | 8-18 | |||||
| f1×D2 | 2×56 | 3×65 | 3×76 | 3×84 | 3×99 | 3×118 | 3×132 | 3×156 |
外形尺寸
| ZZYVP带指挥器型公称通径DN | 20 | 25 | 32 | 40 | 50 | 65 | 80 | 100 |
|---|---|---|---|---|---|---|---|---|
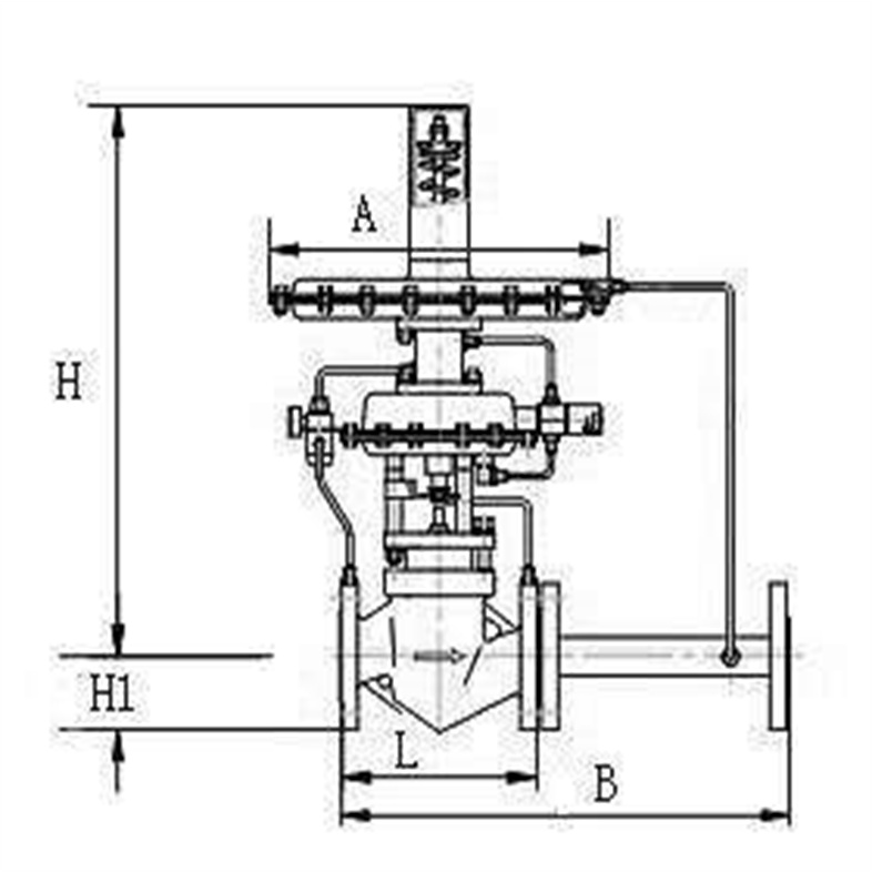
| A | 192 | 232 | 308 | |||||
| H | 629 | 631 | 652 | 666 | 689 | 797 | 837 | 1050 |
| L | 150 | 160 | 180 | 200 | 230 | 290 | 310 | 350 |
| G(Kg) | 18 | 19 | 21 | 23 | 25 | 37 | 50 | 59 |
主要技术参数
| ZZYVP带指挥器型公称通径DN(mm) | 20 | 25 | 32 | 40 | 50 | 65 | 80 | 100 |
|---|---|---|---|---|---|---|---|---|
| 额定流量系数(KV) | 8 | 11 | 20 | 32 | 50 | 80 | 100 | 160 |
| 额定行程(mm) | 6 | 8 | 10 | 15 | 20 | |||
| 公称压力PN(Mpa) | 0.10 | |||||||
| 压力调节范围(KP a) | 0.5∽5.5、5∽10、9∽14、13∽19、18∽24、23∽28 27∽33、31∽38、36∽44、42∽51、49∽58、56∽66 | |||||||
| 介质温度(℃ ) | ≤80℃ | |||||||
| 调节精度(%) | ±10 | |||||||
| 允许泄漏量(L/h) | 10ˉ4×阀额定容量 | |||||||
零件材料
| ZZYVP带指挥器型调压阀零件名称 | 材料 |
|---|---|
| 阀体 | ZG230-450 ZG1Cr18i9Ti ZGCr18Ni12MO2Ti |
| 阀杆、阀芯、阀座 | 1Cr18i9Ti Cr18Ni12MO2Ti |
| 膜片 | 丁腈橡胶夹增强绦纶织物 |
| 弹簧 | 60Si2Mn |
| 波纹管 | 1Cr18i9Ti |
储罐氮封设置规范工作原理

1、 阀前控制原理(见图一) 微压指挥器型自力式阀前调节阀的工作原理:(阀前调压阀为常闭型)
介质由箭头方向流入指挥器和调压阀。阀前压力P1一路流入指挥器B室,做为能源使用,另一路进入指挥器C室做检测信号。阀前压力P1作用在C室的力与设定弹簧的原作用力相平衡时的阀芯位置决定了调压阀主控信号Ps大小,从而实现压力泄放。 若P1压力增加,达到泄放压力(即设定值)时,指挥器C室作用力增加,指挥器阀芯开启,Ps增加,使进入调压阀D室主控信号增加,但Ps≥P弹+P2时,调压阀开启,阀前压力P1向调压阀阀后泄压。待P1降低至泄放压力以下,指挥器阀芯重新关阀,调压阀停止泄压,导致调压阀关闭。 该产品的泄放压力通过指挥器调节螺钉设定。
储罐氮封设置规范工作原理
1、 阀前控制原理(见图一) 微压指挥器型自力式阀后调节阀的工作原理:(阀后调压阀为常闭型)
介质由箭头方向流入调压阀经节流后流出。同时P1也进入指挥器B室做能源使用。阀后压力直接进入调压阀下膜室A。同时进入指挥器测量市C室。 压力P2增加时,首先作用在调压阀A室,使调压阀阀芯上移,调压阀关闭,阀后压力减小(初调)。同时,进入指挥器测量室C室压力也增加,使指挥器关闭,作为能源使用的压力P1经指挥器阀芯节流阻力增加,Ps减小,此压力进入调压阀D室,压力相应减小,调压阀进一步关小,阀后压力继续减小(精调)。故在指挥器型调压阀二次调压过程后,调压精度较通常的调压阀高。 在阀后压力P2降低时,作用方向相反,通过调压阀初调及指挥器操纵调压阀开度后,使P2增加。 设定压力由指挥器调节螺杆调节指挥器压缩弹簧的弹力达到。该产品调压阀为常闭型。运行时,只要有压力P1,即可通过常开型指挥器开启调压阀。
自力式压力调节阀与控制阀的区别
该两类产品的区别,主要在于控制阀即需要外界能源(如电源或气源)做驱动能,又需要接受外来控制仪表信息才能改变阀内截流件相对位置,从而实现改变流体压力。 自力式压力调节阀则既不需外来能源,又不需要接受外来控制仪表信号,仅靠被调介质的压力信号,便可实现压力调节。两者区别可见图二。

储罐氮封设置规范安装事项
(1)安装前,检查整机零件是否缺损与松动,对管道应进行清洗,介质流向应与阀体上的箭头指向一致。
(2)为便于现场维护与操作,阀四周应留有适当空间与设置旁路手动阀,阀组安装方案。
(3)阀门应正立垂直安装在水平管道上,阀体与管道的法尘连接,要注意同轴度,并应安装在环境温度不超过-25~55℃的场合使用。
03储罐氮封工艺流程
在实施储罐氮封时,应遵循一定的工艺流程。首先,在每台储罐上安装先导式氮封阀组和限流孔板旁路。正常情况下,氮封阀组会维持罐内气相空间压力在0.2至0.5kPa的范围内。当气相空间压力超过0.5kPa时,氮封阀会自动关闭,停止氮气供应;而当压力降至0.2kPa以下时,氮封阀则会开启,补充氮气。若氮封阀需要检修或出现故障,可通过限流孔板旁路为储罐内补充氮气。当压力超过1.5kPa时,带阻火器的呼吸阀会进行外排(短时间连续补充氮气),以确保储罐的安全运行。
② 在氮封阀出现故障无法及时关闭,导致罐内压力超过1.5kPa的情况下,呼吸阀将启动外排功能,以保障储罐的安全。同时,若氮封阀因故障无法及时开启,使罐内压力降至-0.3kPa以下,呼吸阀将向罐内补充空气,确保罐内压力不低于设计压力低限-0.5kPa,从而维持储罐的正常运行。
③ 为了确保氮封储罐在事故工况下能够安全排放,必须在储罐上配备紧急泄放阀,并且其定压值不得超过储罐的设计压力上限,即2.0kPa。
④ 在需要利用限流孔板旁路为氮封储罐补充氮气时,应确保流量与油品出罐流量相当,同时,氮气管道的规格为DN50mm,且氮气的操作压力维持在0.5MPa。
⑤ 若储罐间通过气相连通管道相连,则每台储罐的气相出口管道上都应安装阻火器,旨在防止事故的进一步蔓延。
⑥ 选用阻火器时,必须确保其安全性能符合标准,且阻力降不超过0.3kPa。
呼吸阀与泄放阀为压力异常提供纠正措施,同时需要关注阻火器的配置以增强安全性。
图-1展示了一种固定顶罐的简单氮封方式。在此设计中,氮封阀的设定值需谨慎选择,其值应介于呼吸阀的呼气与吸气设定值之间。呼吸阀的设定值大小将直接影响氮气的消耗量。图-2显示了常压罐或容器的另一种氮封实现方式,它通过精准控制进口(氮气进)和出口(气相放空)的压力来实现。这种设计确保罐内始终维持一定的压力,且该压力不会超过10KPa(表压)。
储罐氮封设置规范安装、维护与调试

1、储罐氮封设置规范安装
(1) 检查整机零件是否缺损与松动,对使用有害人体健康的介质,必须进行强度、密封、泄漏 与精度测试。
(2) 在安装前,对管道进行清洗(否则由于焊渣等管道垃圾,损坏阀芯密封面,导致阀门不能 正常工作),阀门入口处要有足够的直管段,并配有过滤器。阀体与管道的法兰连接,要 注意同轴度。
(3) 安装场地应考虑到人员与设备的安全,即便于操作,又有利于拆装与维修。 (4) 阀门应正立垂直安装在水平管道上,导压管必须安装在距离阀出口至少六倍于公称通径的 阀后管道上。阀自重较大与有振动的场合,要用支撑架,尽量避免水平安装。
(5) 介质流动方向应与阀体上的箭头指向一致。因微压阀属于精密仪表,其中指挥器膜片直接 承受介质压力,若阀门反装或管道有反冲压力,则指挥器膜片由于受压过高导致膜片损坏, 阀门不能工作。阀门应在环境温度-25~+55℃场所使用。
(6) 为使自控系统失灵或检修阀门时,仍能连续生产,应设置旁路阀。
注意:根据现场安装经验,氮封阀在安装时,应先与管道过滤器连接。这样可以有效的避免管道吹扫遗 留下的固体颗粒卡坏阀门内部件,而影响正常使用。见下图
过滤器直接连接于供氮阀
(7) 罐顶安装时,若不具备安装支撑氮封系统装置重量条件的情况下,可不设计或少设计安装 截止阀等辅助型开关阀门。以减轻罐顶安装重量。(若安装条件允许或必须设有应急措施 的工况,请务必按国家标准管路设计安装施工)氮封系统装置罐顶安装示意图,见下图
(8) 地面安装,在不考虑承重的地面安装方式中,可将管路设计的更标准化。旁通可在氮封系统 装置故障时,人工应急操作使用。关闭带指挥器自力式调节阀前后截止阀可方便返厂维修及 更换。地面安装方式示意图,见以下
(9) 内衬式氮封系统装置安装,内衬氮封阀属微压式压力调节阀,阀前压力一般控制在 30KPa 左 右,所以主管道应设计一级麻豆AV在线观看(带指挥器自力式调节阀),一级麻豆AV在线观看不属于微压调节 阀,控制压力一般远大于罐内压力,不存在罐内压力倒流现象,故无需阀腔衬氟。以一主多 分的管道布局形式连接各处内衬式氮封系统装置。内衬式氮封系统装置安装方式示意图,见以下内衬式氮封系统装置安装方式示意图
2、 储罐氮封设置规范维护:
(1) 清洗阀门:对清洗一般介质,只要用水洗净就可以。但对清洗有害健康的介质,首先要了 解其性质,在选用相应的清洗办法。
(2) 阀门的拆卸:将外露表面生锈的零件先除锈,但在除锈前,要保护好阀座、阀芯、阀杆与 推杆等精密零件的加工表面。拆装阀座时应使用专用工具。
(3) 阀芯、阀座:二密封面有较小的锈斑与磨损,可用机械加工的方法进行修理,如损坏严重 必须换新。但不管修理或更换后的硬密封面,都必须进行研磨。
(4) 阀杆:表面损坏,必须换新。
(5) 压缩弹簧:如有裂纹等影响强度的缺陷,必须换新。
(6) 易损零件:填料、密封垫片与 O 型圈,每次检修时,全部换新。膜片必须检查是否有预 示将来可能发生裂纹、老化与腐蚀等痕迹,根据检验结果,决定是否更换,但膜片使用期 一般最多 2~3 年。
(7) 阀门组装要注意对中,螺栓要在对角线上拧紧,滑动部分要加润滑油。组装后应按产品出 厂测试项目与方法调试,并在这期间,可更准确地调整填料压紧力与阀芯关闭位置。

3、储罐氮封设置规范 调试
所需要压力值是通过对指挥器顶部的调节螺母的操作而得到调整,打开顶部的防尘盖,用扳手 调整调节螺母。顺时针方向旋转使压力增大,逆时针旋转则压力减小。安装在压力调节阀后的压力 表,可使工作人员借以观察调整后的压力给定值。